Geräumige 2-Zimmer-Whg mit Balkon in gedämmtem Haus

ID: 971
Bezugsfrei ab: nach Absprache
Warmmiete: 755 €
Nebenkosten: 130 €
Ortsangaben
Ort
32425 Minden
Adresse
Leibnizstraße 2b
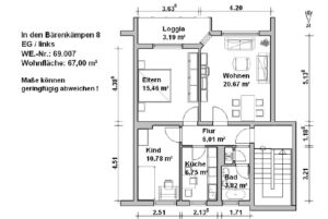
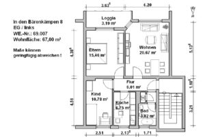
Flächen
Wohnfläche
ca. 58 m²
Anzahl Zimmer
3

Ausstattung

Schauen Sie vorbei und lassen Sie sich überzeugen... Die großzügig geschnittene 3-Zimmer-Wohnung bietet ausreichend Platz für einen Single oder ein Pärchen und befindet sich im Erdgeschoss.

- hell gefliestes Bad mit Dusche und Fenster
- der sonnige Balkon sorgt für einen gehobenen Wohnstandard
- es besteht die Möglichkeit einen Kellerraum zusätzlich anzumieten
- Waschkeller, Trockenraum sowie ein Fahrradkeller stehen im Kellergeschoss zur Verfügung

Darüber hinaus wurde ein mietereigener Parkplatz mit Schranke für Sie geschaffen - gerne können Sie sich auch hier einen Stellplatz sichern!

Zögern Sie nicht lange und vereinbaren Sie einen unverbindlichen Besichtigungstermin mit uns. Wir freuen uns auf Sie!

Kunststoff
Ja
Garten
Ja
Keller
Ja

Objektbeschreibung

Die Wohnanlage ist umgeben von gepflegten Grünanlagen und wurde aktuell aufwendig und umfangreich energetisch saniert und wärmegedämmt, so wurden beispielsweise alle Wohnungen mit neuen 3-fach-verglasten Fenstern ausgestattet, die Hauseingangstüren wurden erneuert. Hier sparen Sie an Heizkosten!

Die Immobilie wurde im Laufe der Zeit regelmäßig Instand gehalten und laufend modernisiert. Somit haben Sie neben einer neuen Briefkasten- und Klingelanlage, eine neue Hauseingangstür und ein adrettes Treppenhaus. Der allgemeine Gebäudezustand ist gehoben und bietet Ihnen ein angenehmes Wohnumfeld.

Energie & Heizung

Energie­ausweistypBedarfsausweis
HeizungsartEtagenheizung
EnergieträgerGas

Weitere Beschreibung

Baujahr: 1963
Heizungsart: Etagenheizung

Wir bieten Ihnen zusätzlich:
- Hausmeisterservice
- Unser Notdienst: Erreichbarkeit 365 Tage im Jahr, rund um die Uhr! Auf uns können Sie zählen!

Die Kaution beträgt 3 Nettokaltmieten.
Tierhaltung ist nach Absprache gestattet.

Ein Besichtigungstermin kann individuell unter (0571) 888 5511 vereinbart werden - oder Sie besuchen uns in unseren Geschäftsräumen in der Hahler Str. 34, 32427 Minden - setzen Sie sich auch gerne wegen weiterer Angebote mit uns in Verbindung!
Unsere Geschäftszeiten sind täglich von 9-18Uhr, Freitags von 9-14Uhr und Samstags von 10-15Uhr.

Unsere aktuellen Angebote finden Sie auch unter www.Wohnhaus-Minden.de
Klicken Sie mal rein!

Kontaktdaten

Herr Alexander-Constantin Brumm
Hahler Straße 34
32427 Minden

Vermietungshotline Wohnen

Vermietungshotline Gewerbe

Montag – Donnerstag:

09.00 – 16:00 Uhr

Freitag:

09.00 – 15.00 Uhr

Termine auch außerhalb der Öffnungszeiten nach Vereinbarung

Keine Geokoordinaten verfügbar.

Lage

Von hier aus erreichen Sie alle Dinge des täglichen Bedarfs bequem zu Fuß, wie Schulen, Kindergarten und Einkaufsmöglichkeiten. Die Nähe zum Mittellandkanal lädt zu ausgiebigen Spaziergängen im Grünen ein und bietet vielfältige Freizeitmöglichkeiten. Das beliebte Melittabad ist nur weinige Minuten entfernt.

Dieses großzügige Mehrfamilienhaus befindet sich in einer liebevoll angelegten Grünanlage.
Vor Ort befindet sich eine gute Anbindung an das öffentliche Verkehrsnetz und das Zentrum ist ebenfalls bequem mit dem Fahrrad zu erreichen.

- Schulen, Einkaufsmöglichkeiten und Kindergärten sind fußläufig erreichbar - ideal für Familien!
- Eine Bushaltestelle befindet sich direkt vor dem Haus