Sanierte 3-Zimmerwohnung nähe des Zentrums

ID: 2292
Bezugsfrei ab: 45931
Warmmiete: 784 €
Nebenkosten: 85 €
Ortsangaben
Ort
32427 Minden
Adresse
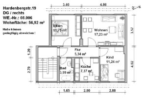
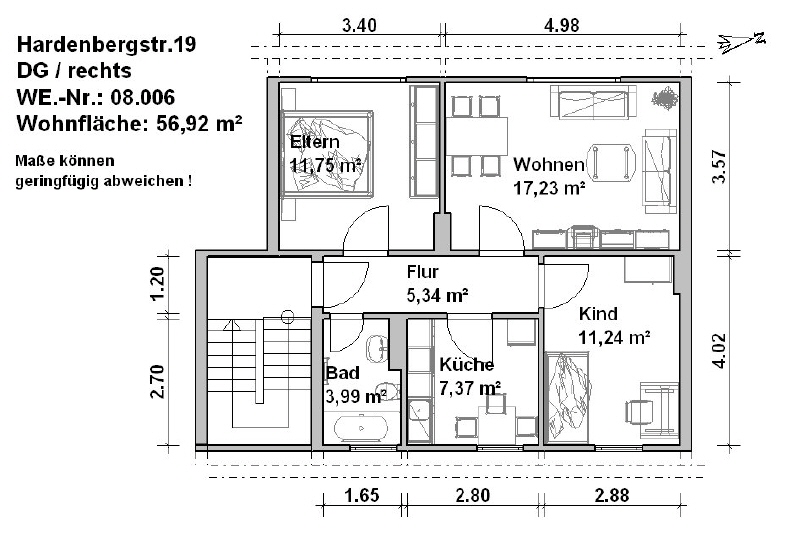
Hardenbergstr. 19
Flächen
Wohnfläche
ca. 58,85 m²
Anzahl Zimmer
3

Ausstattung

Diese Wohnung wird Sie sicherlich überzeugen:

- geflieste Badezimmer mit Wanne und Fenster
- geräumige Wohnküche
- Gartenbenutzung
- Laminat
- großzügiger Balkon wird bald angebaut
- Fahrradkeller sowie Trockenräume verfügbar
- Wasserzähler vorhanden, welche Ihnen eine genaue Abrechnung garantiert
- Kellerraum verfügbar

Kunststoff
Ja
Garten
Ja
Keller
Ja

Objektbeschreibung

Die Wohnung im Dachgeschoss verfügt über eine große helle Wohnküche die nach Süden ausgerichtet ist. Hier können nach Herzenslust Gäste bewirtet werden. Das schöne und hell geflieste Wannenbad, lädt zu Entspannungsbädern ein. Ein schöner Ort, um den anstrengenden Tag ausklingen zu lassen.

Energie & Heizung

Energie­ausweistypBedarfsausweis
HeizungsartEtagenheizung
EnergieträgerGas

Weitere Beschreibung

Baujahr: 1950
Heizungsart: Etagenheizung

Wir bieten Ihnen zusätzlich:
- Hausmeisterservice
- Unser Notdienst: Erreichbarkeit 365 Tage im Jahr, rund um die Uhr! Auf uns können Sie zählen!
- Optional: Stellplatz 29 EUR mit Bügel oder hinter Schranke für 39 EUR
- Kellerraum für 25 EUR monatlich

Die Kaution beträgt 3 Nettokaltmieten.
Tierhaltung ist nach Absprache gestattet.

Ein Besichtigungstermin kann individuell unter (0571) 8885 595 vereinbart werden - oder Sie besuchen uns in unseren Geschäftsräumen in der Hahler Str. 34, 32427 Minden - setzen Sie sich auch gerne wegen weiterer Angebote mit uns in Verbindung!
Unsere Geschäftszeiten sind täglich von 10-12:30 /13:30-18 Uhr, freitags von 10-14 Uhr

Unsere aktuellen Angebote finden Sie auch unter www.Wohnhaus-Minden.de
Klicken Sie mal rein!

Kontaktdaten

Herr Alexander-Constantin Brumm
Hahler Straße 34
32427 Minden

Vermietungshotline Wohnen

Vermietungshotline Gewerbe

Montag – Donnerstag:

09.00 – 16:00 Uhr

Freitag:

09.00 – 15.00 Uhr

Termine auch außerhalb der Öffnungszeiten nach Vereinbarung

Keine Geokoordinaten verfügbar.

Lage

Idyllisch im Stadtbereich Mindens, innerhalb der Ringstraße und direkt an den Botanischen Garten angrenzend gelegen. Nur wenige Gehminuten entfernt befindet sich die Altstadt Mindens. Zudem hat man direkten Anschluss an die öffentlichen Verkehrsmittel.
Ganz neu und direkt gegenüber ist das neue Einkaufszentrum an der Ringstraße, um den WEZ, den DM-Drogeriemarkt und eine Apotheke.

Des weiteren gibt es in unmittelbarer Nähe:

- einen Bio-Markt ca. 50 m
- Friseur ca. 300 m
- Schule (Herder-Gymnasium) ca. 400 m
- Kindergarten ca. 200 m
- Fahrschule ca. 200 m
- Restaurants ca. 400 m

und vieles mehr.