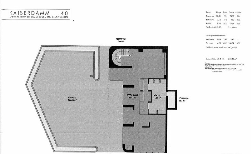
Repräsentative Gastronomiefläche in Ecklage mit Terrasse

ID: 3202
Bezugsfrei ab: kurzfristig
Ortsangaben
Ort
14057 Berlin
Adresse
Kaiserdamm 40
Etage
0 von 7
Flächen
Nutzfläche
ca. 114,87 m²
Gesamtfläche
ca. 297,87 m²
Ladenfläche
ca. 114,87 m²
Verkaufsfläche
ca. 114,87 m²

Ausstattung

KEYFACTS AUF EINEN BLICK
•Flächen: Innenraum 114 m², Terrasse und klimatisierter Wintergarten
•Ausstattung: Komplett ausgestattete Gastronomieküche, Fettabscheider,
Fettabluft, Bodenabläufe, getrennte WC-Einheiten
•Außenflächen: Terrasse sowie beheizbarer Wintergarten
•Parkmöglichkeiten: Stellplätze auf dem Hof und in der Tiefgarage verfügbar
•Verfügbarkeit: Nach Vereinbarung

Personenaufzug
Ja
Keller
Ja

Objektbeschreibung

Die angebotene Gewerbefläche bietet ideale Voraussetzungen für ein erfolgreiches Gastronomiekonzept – ob Restaurant, Brasserie oder Eventlocation. Die großzügige Gastraumfläche im Innenbereich wird durch einen modernen, beheizbaren und klimatisierten Wintergarten ergänzt, der sich vielseitig nutzen lässt und Ihren Gästen zu jeder Jahreszeit höchsten Komfort bietet.
Das Objekt ist gastronomisch voll ausgestattet und sofort betriebsbereit. Zur Ausstattung gehören unter anderem:
•exklusiver Wintergarten
•Voll ausgestattete Küche mit allen notwendigen Geräten
•Fettabscheider und Fettabluftsystem, gemäß den technischen Anforderungen
•Bodenabläufe in relevanten Bereichen für effizientes Arbeiten und Reinigung
•Geschlechtergetrennte WC-Anlagen, gepflegt und großzügig dimensioniert
Die Raumaufteilung ist funktional und durchdacht, sodass sowohl ein hochwertiger Service als auch ein angenehmes Gasterlebnis gewährleistet werden kann.

Energie & Heizung

Energie­ausweistypVerbrauchsausweis
Endenergieverbrauch90 kWh/(m²·a)
HeizungsartZentralheizung
EnergieträgerÖl

Weitere Beschreibung

Baujahr: 1977
Heizungsart: Zentralheizung

Kontaktdaten

Gewerbe - Berlin
Friedrichstraße 30
10969 Berlin

Vermietungshotline Wohnen

Vermietungshotline Gewerbe

Montag – Donnerstag:

09.00 – 16:00 Uhr

Freitag:

09.00 – 15.00 Uhr

Termine auch außerhalb der Öffnungszeiten nach Vereinbarung

Keine Geokoordinaten verfügbar.

Lage

Die Immobilie befindet sich in bester Lage im Berliner Bezirk Charlottenburg, direkt am Kaiserdamm – einer belebten Ausfallstraße mit hoher Sichtbarkeit und starker Fußgängerfrequenz mit Ausrichtung zum Theodor-Heuß-Platz. Die Nähe zur Messe Berlin, dem Gelände des RBB und dem ZOB macht den Standort besonders attraktiv für ein internationales und geschäftliches Publikum.

In einem Umkreis von 300 Metern befinden sich bereits etablierte Gastronomiebetriebe, darunter:

Cancún III Berlin – beliebtes mexikanisches Restaurant mit Bar

Trattoria Splendido – klassische italienische Trattoria

T.Viet – vietnamesische Küche mit asiatischem Flair

Die U-Bahn-Station Kaiserdamm (U2) ist fußläufig erreichbar, ebenso wie mehrere Bushaltestellen. Die Anbindung an die A100 ermöglicht eine schnelle Erreichbarkeit mit dem Auto.