Attraktive Ladenfläche in zentraler Lage in Schöneberg

ID: 3617
Bezugsfrei ab: 30.06.2026
Nebenkosten: 315 €
Ortsangaben
Ort
10779 Berlin
Adresse
Martin-Luther-Str. 39
Flächen
Nutzfläche
ca. 173,03 m²
Gesamtfläche
ca. 173,03 m²
Ladenfläche
ca. 150 m²
Verkaufsfläche
ca. 150 m²

Ausstattung

Keyfacts

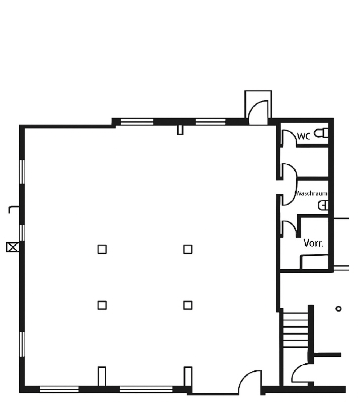
Gesamtflächeca. 173 m² (Verkaufsfläche + Nebenräume)
Verkaufsflächeca. 150 m², offen und flexibel gestaltbar
Schaufensterfrontca. 15 m breit, ideal für Werbung und Präsentation
Lagerflächenim Untergeschoss verfügbar
Stellplätzeim Hof und Tiefgarage optional anmietbar
Verfügbarkeitab 01.01.2026
NutzungsmöglichkeitenEinzelhandel, Dienstleistung, Gastronomie möglich
Lageverkehrsgünstig mit Top-Anbindung

Personenaufzug
Ja

Objektbeschreibung

Die großzügige, ebenerdige Verkaufsfläche mit ca. 150 m² überzeugt durch ihren offenen Grundriss und ihre ausgezeichnete Sichtbarkeit. Die ca. 15 Meter breite Schaufensterfront entlang der Martin-Luther-Straße bietet ideale Präsentationsmöglichkeiten für Produkte und Dienstleistungen und schafft eine helle, einladende Atmosphäre.
Die Fläche eignet sich sowohl für den klassischen Einzelhandel als auch für Dienstleistungen oder eine gastronomische Nutzung (vorbehaltlich behördlicher Genehmigungen). Die Raumaufteilung kann flexibel an individuelle Anforderungen angepasst werden.
Im Untergeschoss stehen zusätzlich praktische Lagerflächen zur Verfügung. Darüber hinaus können Stellplätze im Innenhof sowie in der Tiefgarage angeboten werden – ein besonderer Vorteil für Mitarbeitende und Kunden.

Energie & Heizung

Energie­ausweistypVerbrauchsausweis
Endenergieverbrauch127 kWh/(m²·a)
HeizungsartZentralheizung
EnergieträgerÖl, Gas

Weitere Beschreibung

Heizungsart: Zentralheizung
Baujahr: 1977

Da es sich um einen geförderten Wohnungsbau handelt, erhöht sich die Nettokaltmiete jährlich um 0,13 € / m² (Förderungsabbau). Für die Anmietung der Wohnung ist ein Wohnberechtigungsschein erforderlich.

Die Kaution beträgt 3 Nettokaltmieten.

Ein Besichtigungstermin kann individuell unter der angegebenen Rufnummer vereinbart werden oder Sie schicken uns ein Kontaktformular. Gern können Sie sich auch wegen weiterer Angebote mit uns in Verbindung setzen.

Kontaktdaten

Gewerbe - Berlin
Friedrichstraße 30
10969 Berlin

Vermietungshotline Wohnen

Vermietungshotline Gewerbe

Montag – Donnerstag:

09.00 – 16:00 Uhr

Freitag:

09.00 – 15.00 Uhr

Termine auch außerhalb der Öffnungszeiten nach Vereinbarung

Lage

Die Gewerbefläche befindet sich in zentraler Lage von Berlin-Schöneberg an der belebten Martin-Luther-Straße. Der Standort profitiert von einer sehr guten Anbindung an den öffentlichen Nahverkehr: Die U-Bahnhöfe Bayerischer Platz und Nollendorfplatz sowie mehrere Buslinien befinden sich in unmittelbarer Nähe. Auch die Stadtautobahn (A100) ist schnell erreichbar.

Das direkte Umfeld bietet eine vielfältige Mischung aus Einzelhandel, Gastronomie, Dienstleistungsunternehmen und Arztpraxen. In nur 200 Metern Umkreis finden sich unter anderem ein Rewe-Markt, Bioläden, Apotheken, Cafés sowie zahlreiche kleinere Fachgeschäfte – ein lebendiges Umfeld mit hoher Kundenfrequenz.