Für Familien geeignet

ID: 18565
Bezugsfrei ab: nach Vereinbarung
Warmmiete: 1.045 €
Nebenkosten: 220 €
Ortsangaben
Ort
32425 Minden
Adresse
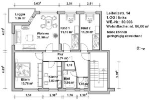
Leibnizstr. 14
Flächen
Wohnfläche
ca. 87,13 m²
Anzahl Zimmer
4

Ausstattung

Gemütliche Wohnung im 2. Obergeschoss

- modernes Bad
- Balkon
- Waschmaschienenplatz im Bad
- Laminat
- Kunststoff-Fenster mit Isolierverglasung

Ein Kellerraum gehört ebenfalls zum Mietobjekt und kann optional angemietet werden.
Gerne können Sie einen unverbindlichen Besichtigungstermin mit uns vereinbaren. Wir freuen uns auf Sie!

So macht wohnen spaß ! Wir laden Sie ganz herzlich zu einer unvergesslichen Besichtigung ein.

Garten
Ja
Keller
Ja

Objektbeschreibung

Diese Liegenschaft zeichnet sich besonders durch eine neuwertige und wärmegedämmte Fassade aus, die den heutigen Standards entspricht. Dadurch haben Sie neben dem attraktiven Erscheinungsbild auch den Vorteil, dass weniger Heizkosten entstehen und Sie eine geringere Miete zu zahlen haben.

An dem Miethaus ist ein schöner Garten für die Gemeinschaftsnutzung angelegt, der zum Wohlfühlen und zum Erholen einlädt. Die Pflege übernimmt ein Fachunternehmen und erhält Ihnen somit die idyllische Natur an Ihrem Wohnort.

Die Immobilie wurde im Laufe der Zeit regelmäßig Instand gehalten und laufend modernisiert. Somit haben Sie neben einer neuen Briefkasten- und Klingelanlage, eine neue Hauseingangstür und ein adrettes Treppenhaus. Der allgemeine Gebäudezustand ist gepflegt und bietet Ihnen ein angenehmes Wohnumfeld.

Ein Waschkeller steht Ihnen ebenfalls zur Verfügung und ermöglicht Ihnen eine bessere Ausnutzung der Wohnfläche.

Eigene Kellerräume bieten den Mietern dieser Immobilie zusätzlichen Stauraum und ermöglichen somit eine bessere Nutzung der Wohnung. Diese dürfen gesondert angemietet werden.

Das Haus verfügt über eine Zentralheizung. Diese wird regelmäßig gewartet und sorgt für eine zuverlässige und effiziente Beheizung der Wohnungen.

Das Haus verfügt über Gas- Etagenheizungen in den Wohnungen. Durch diese Heizungsform haben Sie die Möglichkeit einen eigenen Vertrag mit dem preiswertesten Gas- Anbieter abzuschließen und die Kosten eigenständig in der Hand zu haben. Sie zahlen nur den eigenen Verbrauch direkt an den von Ihnen ausgewählten Versorger.

An dieser Immobilie befinden sich Stellplätze/ Garagen für die Mieter. Diese können gesondert angemietet werden. Sprechen Sie uns einfach an und wir überprüfen die Verfügbarkeit oder bieten Alternativen an.

Darüber hinaus stehen kostenfreie Parkmöglichkeiten an der Straße zur Verfügung und können von Ihnen genutzt werden. .

Um technische Angelegenheiten kümmert sich ein Hausmeister einer versierten Fachfirma. Somit steht Ihnen direkt vor Ort ein kompetenter Ansprechpartner zur Verfügung.

Neben dem Hausmeisterservice wird auch die Flurreinigung durch ein Fachunternehmen ausgeführt.

Energie & Heizung

Energie­ausweistypBedarfsausweis
EnergieträgerGas

Weitere Beschreibung

Baujahr: 1967

Wir bieten Ihnen zusätzlich:
- Hausmeisterservice
- Unser Notdienst: Erreichbarkeit 365 Tage im Jahr, rund um die Uhr! Auf uns können Sie zählen!
- Optional: Stellplatz 29 EUR mit Bügel oder hinter Schranke für 39 EUR
- Kellerraum für 25 EUR monatlich

Die Kaution beträgt 3 Nettokaltmieten.
Tierhaltung ist nach Absprache gestattet.

Ein Besichtigungstermin kann individuell unter (0571) 8885 595 vereinbart werden - oder Sie besuchen uns in unseren Geschäftsräumen in der Hahler Str. 34, 32427 Minden - setzen Sie sich auch gerne wegen weiterer Angebote mit uns in Verbindung!
Unsere Geschäftszeiten sind täglich von 10-12:30 /13:30-18 Uhr, freitags von 10-14 Uhr

Unsere aktuellen Angebote finden Sie auch unter www.Wohnhaus-Minden.de
Klicken Sie mal rein!

Kontaktdaten

Frau Merle Urbschat
Hahler Straße 34
32427 Minden

Vermietungshotline Wohnen

Vermietungshotline Gewerbe

Montag – Donnerstag:

09.00 – 16:00 Uhr

Freitag:

09.00 – 15.00 Uhr

Termine auch außerhalb der Öffnungszeiten nach Vereinbarung

Lage

Die Immobilie befindet sich auf der Straße/ Stadtteil
- in einem ruhigen Wohngebiet/
- in einer zentralen Lage
und ermöglicht Ihnen einen hervorragenden Anschluss zu Nah- Und Fernverkehr.

In unmittelbarer Umgebung befinden sich viel Grünzonen die das Wohnumfeld auflockern und diese Straße zu einem beliebten Wohnort machen.

Gute Einkaufsmöglichkeiten des täglichen Bedarfs sowie Haltestellen des öffentlichen Nahverkehrs finden sich nur wenige Minuten entfernt. Auch das weitere Umfeld ist durchdacht angelegt worden und bietet neben erholsamen Ruhezonen auch gute Möglichkeiten zu weiteren interessanten Aktivitäten.