Günstige Wohnung im Dachgeschoss

ID: 835
Bezugsfrei ab: nach Absprache
Warmmiete: 910 €
Nebenkosten: 185 €
Ortsangaben
Ort
32427 Minden
Adresse
Königstr. 126
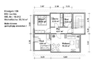
Flächen
Wohnfläche
ca. 55,14 m²
Anzahl Zimmer
3

Ausstattung

Hier lässt es sich wohnen und wohlfühlen.. Ob alleine oder zu zweit, viel Platz, verteilt auf 3 Zimmer...

- Laminat
- Bad mit Wanne und Fenster
- tapeziert
- Trockenboden
- Kabelanschluss im Wohn- und Schlafzimmer
- ein Kellerraum gehört selbstverständlich ebenfalls zu dem von Ihnen gemieteten Objekt, und kann zusätzlich angemietet werden

Zudem ist diese Wohnung mit einem Wasserzähler ausgestattet, die den Verbrauch gerecht unter den Mietern verteilt.

Kunststoff
Ja
Garten
Ja
Keller
Ja

Objektbeschreibung

Das gepflegte Haus an der Königstr. wurde im Jahr 1951 erbaut und regelmäßig auf den neuesten Stand der Technik gebracht.
Das Haus besticht unter anderem durch den großen Parkplatz direkt hinter dem Haus, wo Sie Ihren PKW sicher abstellen können.
Die große Grünfläche bietet Ihnen Raum zur Entspannung - ideal auch für Familien mit Kindern.

Energie & Heizung

Energie­ausweistypVerbrauchsausweis
Endenergieverbrauch126,30 kWh/(m²·a)
HeizungsartZentralheizung
EnergieträgerGas

Weitere Beschreibung

Baujahr: 1951
Heizungsart: Zentralheizung

Wir bieten Ihnen zusätzlich:
- Hausmeisterservice
- Unser Notdienst: Erreichbarkeit 365 Tage im Jahr, rund um die Uhr! Auf uns können Sie zählen!

Die Kaution beträgt 3 Nettokaltmieten.
Tierhaltung ist nach Absprache gestattet.

Ein Besichtigungstermin kann individuell unter (0571) 8885 595 vereinbart werden - oder Sie besuchen uns in unseren Geschäftsräumen in der Hahler Str. 34, 32427 Minden - setzen Sie sich auch gerne wegen weiterer Angebote mit uns in Verbindung!
Unsere Geschäftszeiten sind täglich von 10-12:30 und 13:30-18 Uhr, freitags von 10-14 Uhr und samstags nach Absprache

Unsere aktuellen Angebote finden Sie auch unter www.Wohnhaus-Minden.de
Klicken Sie mal rein

Kontaktdaten

Frau Merle Urbschat
Hahler Straße 34
32427 Minden

Vermietungshotline Wohnen

Vermietungshotline Gewerbe

Montag – Donnerstag:

09.00 – 16:00 Uhr

Freitag:

09.00 – 15.00 Uhr

Termine auch außerhalb der Öffnungszeiten nach Vereinbarung

Lage

Tolle Familien-Lage! - die Lage besticht durch Ihre Eingrünung und Ruhe, welche hier die Nähe zur Innenstadt ergänzt.

- die Hohenstaufenschule ist nur wenige Gehminuten entfernt
- ein Bäcker ca 150m
- das E-Center befindet sich direkt ums Eck, ca. 100m
- eine Bushaltestelle, welche von der Buslinie 13 angefahren wird, befindet sich vor der Haustür
- Ärztehaus und Apotheke ca. 100m nur entfernt

Zentraler geht es kaum.