Stadtnahe Wohnung für die Familie

ID: 772
Bezugsfrei ab: nach Absprache
Warmmiete: 789 €
Nebenkosten: 140 €
Ortsangaben
Ort
32427 Minden
Adresse
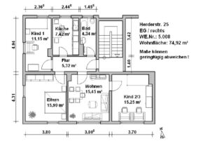
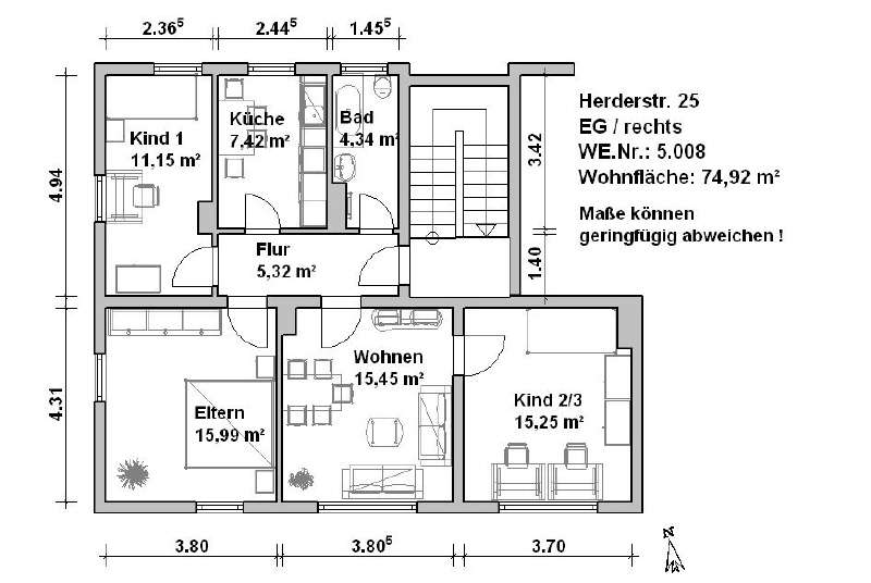
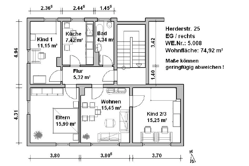
Herderstr. 25
Flächen
Wohnfläche
ca. 59,93 m²
Anzahl Zimmer
3

Ausstattung

Frisch sanierte 3 Zimmer Wohnung mit Charme sucht neuen Nachmieter,

- perfekter Wohnrauf für eine WG oder eine Familie
- Badezimmer ist gefließt und mit einem Fenster ausgestattet
- ein Balkon wird noch für Sie angebaut
- PVC Bodenbelag
- Kellerraum kann bei Bedarf angemietet werden

Zögern Sie nicht und vereinbaren Sie einen unverbindlichen Besichtigungstermin!

Kunststoff
Ja
Garten
Ja
Keller
Ja

Objektbeschreibung

Dieses 6-Familienhaus befindet sich im Innenstadtring Mindens.
Hinter dem Haus befinden sich großzügige Grünflächen zur gemeinschaftlichen Nutzung - Aber keine Sorge - die Pflege übernimmt für Sie ein Fachunternehmen!
Die Beheizung der Wohnungen erfolgt über eine Gas-Etagenheizung - kontrollieren Sie selber Ihren Energieverbrauch!

Energie & Heizung

Energie­ausweistypBedarfsausweis
Endenergiebedarf264,10 kWh/(m²·a)
HeizungsartEtagenheizung
EnergieträgerGas

Weitere Beschreibung

Baujahr: 1950
Heizungsart: Etagenheizung
Energiekennwert: 264,1 kWh/(m²*a)
Energieausweistyp: Bedarfsausweis
Befeuerung/Energieträger: Erdgas leicht

Wir bieten Ihnen zusätzlich:
- Hausmeisterservice
- Unser Notdienst: Erreichbarkeit 365 Tage im Jahr, rund um die Uhr! Auf uns können Sie zählen!

Die Kaution beträgt 3 Nettokaltmieten.
Tierhaltung ist nach Absprache gestattet.

Ein Besichtigungstermin kann individuell unter (0571) 888 555 vereinbart werden - oder Sie besuchen uns in unseren Geschäftsräumen in der Hahler Str. 34, 32427 Minden - setzen Sie sich auch gerne wegen weiterer Angebote mit uns in Verbindung!
Unsere Geschäftszeiten sind täglich von 10-12:30/13:30-18 Uhr, Freitags von 10-14Uhr und Samstags nach Absprache

Unsere aktuellen Angebote finden Sie auch unter www.Wohnhaus-Minden.de
Klicken Sie mal rein!

Kontaktdaten

Frau Merle Urbschat
Hahler Straße 34
32427 Minden

Vermietungshotline Wohnen

Vermietungshotline Gewerbe

Montag – Donnerstag:

09.00 – 16:00 Uhr

Freitag:

09.00 – 15.00 Uhr

Termine auch außerhalb der Öffnungszeiten nach Vereinbarung

Lage

Stadtnah gelegen und an das zentrale Verkehrsnetz angebunden, bietet diese Wohnung einen optimalen Ausgangspunkt für Berufstätige und Pendler.

**Die Fachhochschule befindet sich in der Nebenstraße, daher ist diese Wohnung auch ideal für Studenten geeignet
**Einkaufsmöglichkeiten befindet sich wenige Gehminuten entfernt (an der Stiftsallee)
**Schulen und Ärzte befinden sich ebenfalls in der Nähe
**Ein Bus fährt direkt an der Hahler Straße in alle Richtungen

In unmittelbarer Umgebung befinden sich viel Grünzonen, der Botanische Garten ist ums Eck...
Hier brauchen Sie definitiv kein Auto mehr!